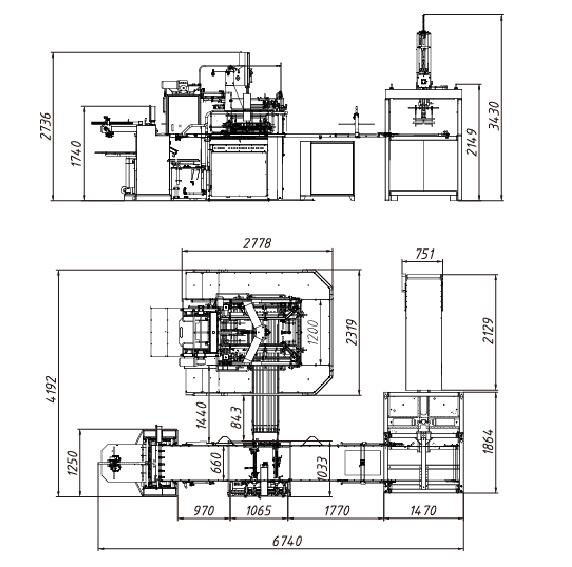
HM-ZD6418E/C全自动智能制盒机产品介绍:
HM-ZD6418E/C全自动智能制盒机,是我公司最新研发的全自动智能天地盖制盒机,适用于多种天地盖盒型的大量生产,如鞋盒、手机盒、首饰盒、酒盒、斜边盒、书套盒(选配)、连体盒(选配)等等。成型高度最大可达190mm(C)和130mm(E),折入深度可达100mm。
本机不仅采用 PLC和触摸屏人机控制系统、光电跟踪定位系统、液压纠偏系统,实现进纸、过胶、进灰板、贴四角、定位、抱盒、包边、折耳和折入成型自动完成。
更在飞达、过胶和输送带适用伺服驱动,可无极变速,高精度,易调节,省时间;双色输送带免去了更换输送带的麻烦,节省时间,属于鸿铭专利;定位部分采用瑞士微量节流阀,高精度丝杆(C)或者方牙丝杆(E)纠偏,提高定位精度,误差范围在±0.2MM;成型机采用日本进口THK线性导轨和虚拟凸轮驱动,更稳定耐磨且动作更流畅。
HM-ZD6418E/C机组特点和标准配备:
1.适合各种硬纸天地盖自动生产;
2.全电脑功能参数的设置和自动换模功能(选配)
3.故障诊断功能
4.自动吸送面纸和送灰纸板功能;
5.24小时控制胶水预热功能;
6.成型机内置300项产品配方
7.四角贴角加热单独人机界面控制;
8.整机采用伺服控制系统;
9.纠偏定位系统(定位精度+-0.2mm);
10.成型部位自动抬盒引取装置;
11.胶水粘度自动控制系统(选配)
HM-ZD6418E/C全自动智能制盒机技术参数:



备注:
1. 盒子大小由面纸大小决定;
A(Min.)<W+2H+2T+2R<A(Max.); B(Min.)<L+2H+2T+2R<B(Max.)
2. 最大和最小尺寸不能同时满足;
3. 生产速度由盒子大小和面纸灰板的材质来决定;
4. 我司不提供空压机,空压机压力需求为8atm=0.808Mpa, 空压机功率:7.5kw
5. 第5、6、8号盒子为HM-ZD6418C的选配功能。
*由于产品设计不断改良,以上图片以及参数仅供参考。如有更改,恕不另行通知。